Varje hem börjar med en idé, en vision om hur du vill leva, bo och skapa minnen med dem du älskar. På INNOVISION KONSULT AB gör vi den visionen till verklighet!


Våra Tjänster

Vi erbjuder en rad tjänster inom byggkonstruktion och utbildning.

Byggkonsultation

-Dimensionering av bärande konstruktioner

-Framtagning av bygglovshandlingar för nybyggnation, ombyggnation och tillbyggnation

-Utförande av konstruktionsdokumentation


Utbildningar

Utbildningar inom byggkonstruktion, byggteknik, byggfysik och matematik för yrkeshögskolor och universitet


Teknisk expertis inom byggkonstruktion

Innovision Konsult AB erbjuder professionella konsulttjänster inom byggkonstruktion, projektering och teknisk rådgivning.
Som erfaren rådgivare hjälper vi företag, kommuner och privatpersoner att utveckla hållbara, säkra och kostnadseffektiva byggnadslösningar.
Vårt arbete präglas av kvalitet, noggrannhet och ett genuint engagemang för att skapa långsiktigt värde i varje projekt.

Projektreferenser


Nyckeln 21

Projektering och dimensionering av bärande stomme för tvåvåningshus, inklusive framtagning av kompletta bygghandlingar.

Nordan 18-20

Utredning av lastkapacitet för befintligt gårdsbjälklag på Hagalundsgatan 1.
Uppdraget omfattade en analys för att fastställa den maximala nyttiga lasten som bjälklaget kan bära. Projektet inkluderade även en bedömning av lastkapaciteten för de befintliga taken på Nordan 18 och Nordan 20. Som en del av uppdraget genomfördes kontroll av takkonstruktionernas bärförmåga med hänsyn till tillkommande laster från planerade solcellsinstallationer.

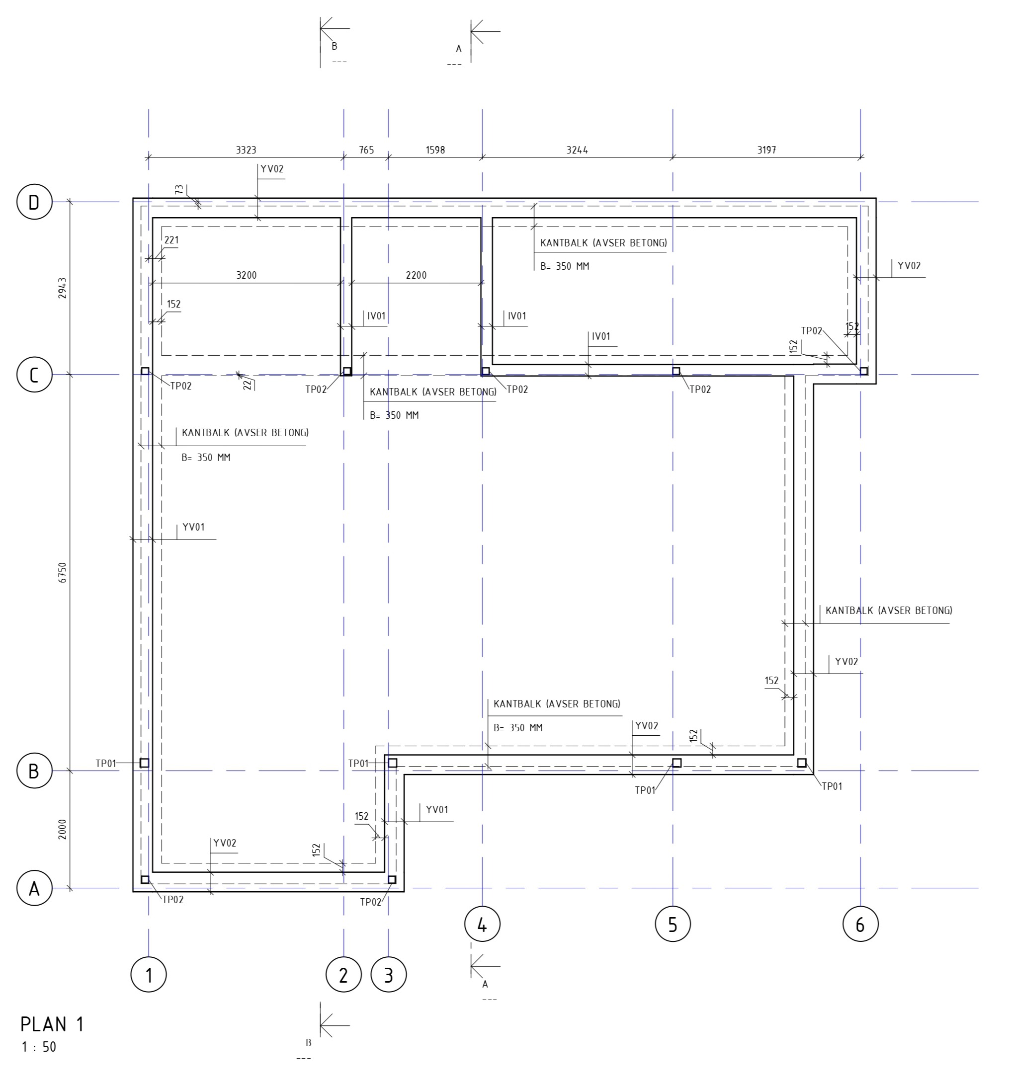
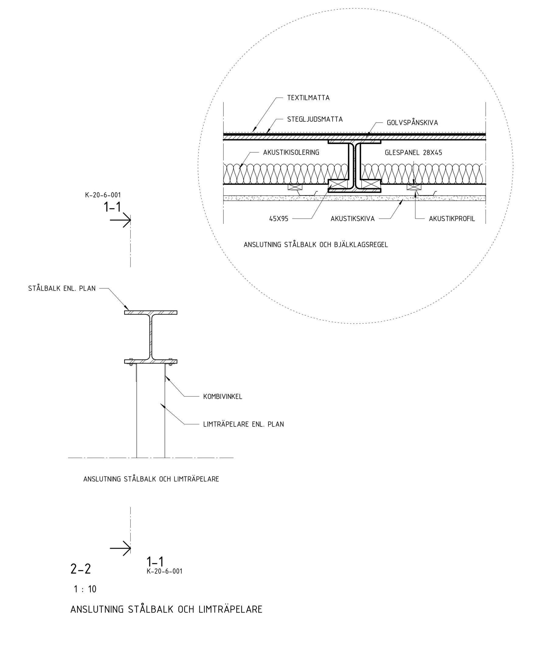
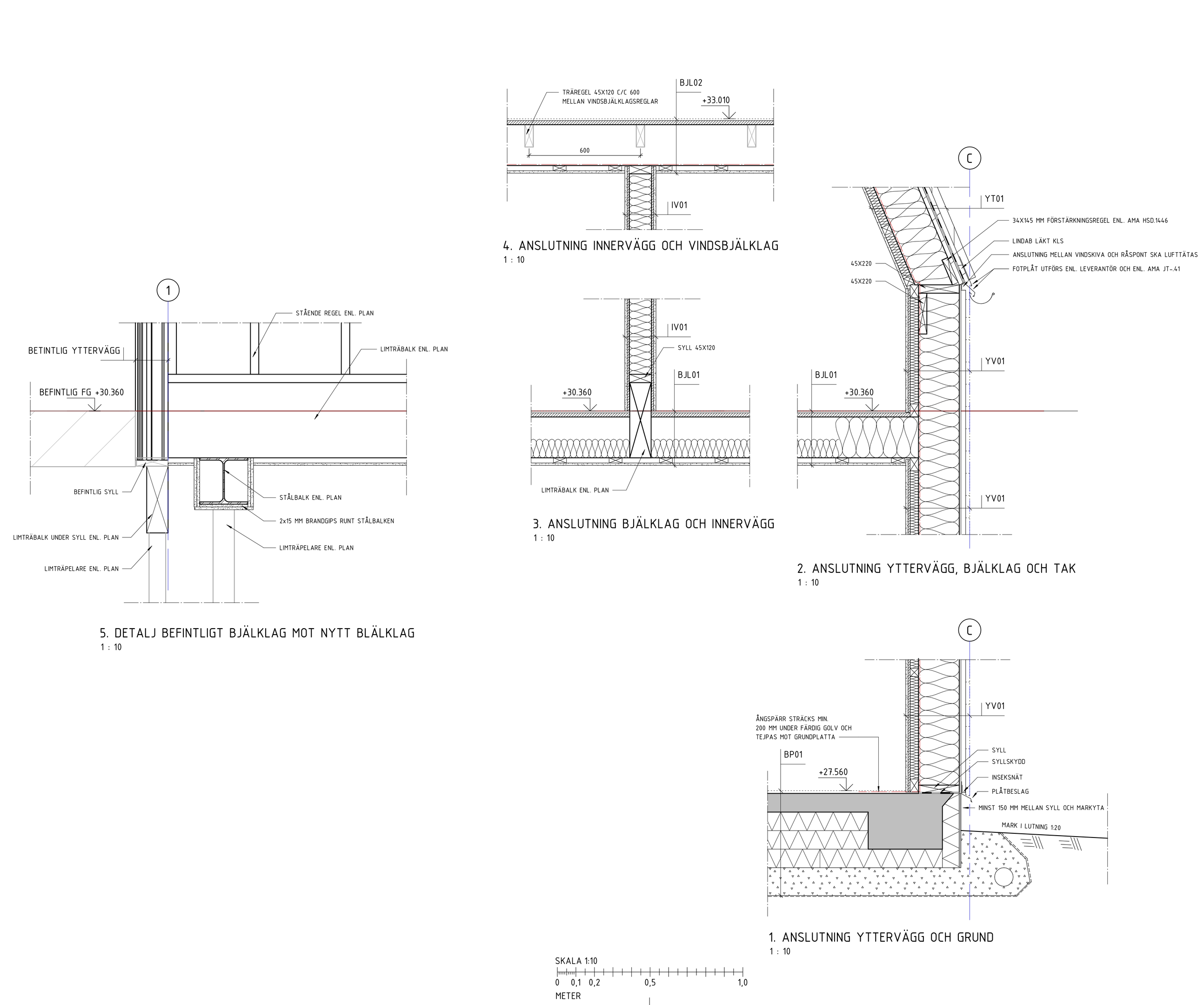
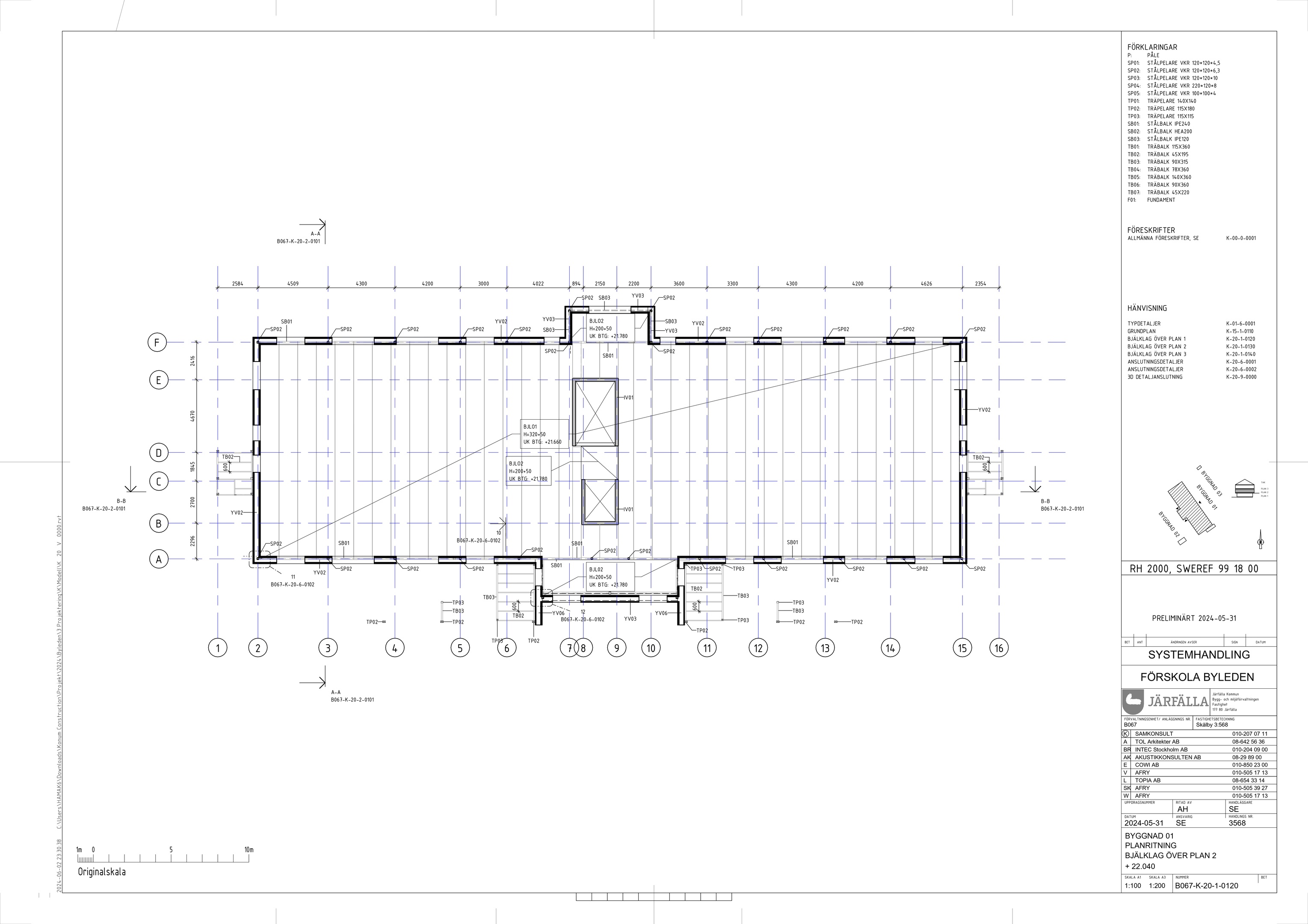
Förskolan Byleden

Framtagning av systemhandlingar för förskolan/skolan, omfattande lastanalys, dimensionering av bärande stomme samt utarbetande av kompletta systemhandlingar som underlag för förfrågningsunderlag

Verka 1-6

Projektering och teknisk rådgivning inom byggkonstruktion. Projektet omfattar framtagning av konstruktionslösningar, dimensionering av bärande system samt upprättande av bygghandlingar.

Svartgarn

Projektering och teknisk rådgivning inom byggkonstruktion.
Projektet omfattar framtagning av konstruktiva lösningar, dimensionering av bärande konstruktioner samt upprättande av bygghandlingar.

Lilla Alby

Projektering och teknisk rådgivning inom byggkonstruktion för tillbyggnad av bjälklag.
Uppdraget omfattade framtagning av konstruktiva lösningar, dimensionering av bärande system samt upprättande av bygghandlingar.

Bäverbäcken

Lastnedräkning och framtagning av konstruktionshandlingar för förfrågningsunderlag.
Uppdraget omfattade även mängdberäkning av schakt, betong och pålar.

BJÖRKUDDEN 6

Projektering av tillbyggnad, inklusive dimensionering av stomsystem samt framtagning av bygghandlingar.


Kontakta oss

Här hittar du vår kontaktinformation för att nå oss enkelt.

Trondheimsgatan 8

+46737824470

abdulla@innovisionkonsult.se